Casa indipendente in vendita

San Secondo Parmense, Via giulio oddi
€ 250.000
18 locali 18 locali
250 Mq 250 Mq
2 bagni 2 bagni

Casa indipendente in vendita

San Secondo Parmense, Via giulio oddi

Descrizione annuncio

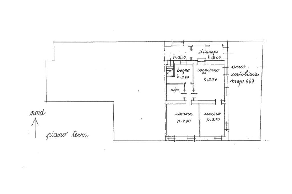
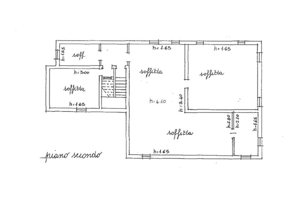
In pieno centro a San secondo Parmense, intera palazzina indipendente sviluppata su più livelli (piano terra, primo piano, piano sottotetto e piano seminterrato ad uso cantine), ideale per interventi di ristrutturazione e valorizzazione.

L’immobile, di ampia metratura, presenta una distribuzione interna estremamente flessibile e si presta alla realizzazione di fino a tre appartamenti spaziosi, oppure a una soluzione unifamiliare di grandi dimensioni. La struttura consente una completa personalizzazione degli spazi, adattandosi a diverse esigenze abitative o progettuali.

Completano la proprietà un piano seminterrato destinato a cantine e una area cortilizia privata con accesso carrabile, con possibilità di realizzare posti auto, elemento di particolare valore per questo tipo di immobile.

Soluzione ideale per investitori, imprese edili o per chi desidera realizzare una residenza plurifamiliare o una grande abitazione indipendente.

Mostra tutto

Nelle vicinanze

Trasporto pubblico Trasporto pubblico
San Secondo Via Mazza
San Secondo Via Mazza
190 m
San Secondo Via Cavour
San Secondo Via Cavour
240 m
Scuole Scuole
Sma Serbatoi (S.P.A.)
470 m
Supermercati Supermercati
Conad
820 m
Famila Superstore
2,3 Km
Negozi Negozi
La Fonte Del Pane
40 m
Giacomazzi Srl
60 m
Margherita CONAD
160 m
Magnani Romano E Figli
160 m
Bar Bar
Bar
140 m
Bar Fiorita
180 m
Ristoranti Ristoranti
Angedras
110 m
Mostra tutto

Caratteristiche

Rif.:
61174985
Piano:
Su più livelli di 4
Totale piani:
4
Posti auto:
2
Balconi:
1
Camere da letto:
6
Mostra tutto
Prezzo Prezzo
€ 250.000
Rata mutuo Rata mutuo
€ 1.179 / mese
Spese annue Spese annue
€ 0
Proponi il tuo prezzoProponi il tuo prezzo

Classe Energetica

G
G
G
G
G
G
G
G
G
EP globale non rinnovabile:
0.00 kW h/m² anno
EP globale rinnovabile:
0.00 kW h/m² anno
EP invernale del fabbricato:
EP estiva del fabbricato:
Anno di costruzione:
1750
Riscaldamento:
Autonomo
Tipo impianto:
A radiatori
Tipo alimentazione:
Metano

Ti interessa visionare l'immobile?

Fissa un appuntamento  Fissa un appuntamento

Richiedi informazioni

Clicca su Leggi per aprire l'informativa
* Questi campi sono obbligatori

Calcola il tuo mutuo

Semplice e senza impegno
Anticipo

( % )
Mutuo

( % )

pochi semplici passi

inserisci i tuoi dati
Questionario completato
Grazie per aver richiesto un appuntamento senza impegno con un nostro Consulente del Credito e Assicurativo.

Hai inserito correttamente tutti i dati necessari e a breve riceverai una e-mail con un link da convalidare per inviare i tuoi dati.
Affiliato
Mira Immobiliare Srl
Via Roma, 44/46 43017 San Secondo Parmense (PR)

Il nostro staff


  • Giulia Menegardi
    Coordinatrice

  • Gabriele Mannarino
    Collaboratore

  • Alessio Tahiri
    Collaboratore

  • Raffaella Del Mastro
    Affiliata
Via Roma, 44/46 43017 San Secondo Parmense (PR)
Zona: San Secondo Parmense-Sissa Trecasali-Viarolo-Ronco Campo Canneto
Mostra su mappa
Orari: dal lunedì al venerdì 9:00/12.30 15:00/19:30. sabato 09:00/14:00
Affiliato
Mira Immobiliare Srl
Via Roma, 44/46 43017 San Secondo Parmense (PR)

2026 Tecnocasa Franchising S.p.A. - P. IVA 08365160152 - Via Monte Bianco 60/A 20089 Rozzano (MI). Ogni agenzia ha un proprio titolare ed è autonoma. Privacy policy | Policy utilizzo | Cookie policy